Nytt fritidshus i Rönnerum
Under 2025/2026 bygger Ölands Bygglag ett nytt fritidshus i Rönnerum. Arkitekturen är utformad i äldre stil med mansardtak för att smälta in i omkringliggande landsbygd.
Här kan du följa projektet från bygglov till slutbesiktning.

FAKTARUTA
- Plats: Rönnerum, Öland
- Typ: 2 plan med mansardtak
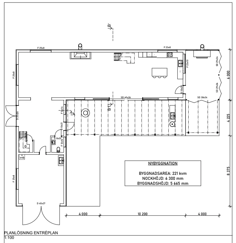
- Byggnadsarea: 221 kvm
- Boyta: ca 400 kvm
- Stomme/material: Trä
- Energilösning: Värmepump
- Startdatum: juli 2025
- Beräknat slutdatum: 2026
PROJEKTPLAN
- BYGGLOV
En bygglov behövs för att bygga nytt. Bygglovsansökan skickades till Borgholms kommun i maj 2025. Läs mer → - UTSÄTTNING OCH MARKARBETE
Arbetet inleds med att området mäts ut och förbereds. Marken schaktas till rätt nivå och botten fylls med bärlager av grus och makadam. Läs mer → - HUSRESNING
Efter veckor av planering, förberedelser och markarbete är det äntligen dags att se huset börja ta form. Läs mer → - TÄTT HUS
Arbetet började med montering av råspont på taket. Råsponten spikas fast direkt på takstolarna. Läs mer → - INVÄNDIGA ARBETEN
De utvändiga arbetena är i princip klara, med undantag för den sista putsen, och fokus ligger nu helt på insidan av huset. Läs mer → - SLUTSAMRÅD & SLUTBESKTNING
Datum: Maj 2025
Bygglov
Bygglovsansökan skickades in i maj 2025. I juli beviljades bygglovet och i oktober kom startbeskedet, som krävs innan bygget kan påbörjas.
Eftersom detta är ett större byggprojekt krävdes även ett tekniskt samråd, där kontrollansvarig, entreprenör och kommunens byggnadsinspektör träffas för att gå igenom kontrollplanen och diskutera arbetets planering och organisation.
Efter det tekniska samrådet utfärdade kommunens byggnadsinspektör startbesked, och bygget kan börja.

Datum: 31 Oktober 2025
Markarbete och gjutning av betongplatta
Utsättning och markarbete
Arbetet börjar med att byggnaden markeras ut enligt bygglovet. Marken schaktas till rätt nivå och botten fylls med bärlager av grus och makadam för att skapa en stabil och dränerande grund.
Förberedelser inför gjutning
När marken är färdigställd placeras grundelement och armering enligt konstruktionsritningarna. Dessa förstärker betongen och ger plattan dess bärighet. Rördragningar och installationer för vatten och avlopp görs också innan gjutningen påbörjas.



Gjutning av betongplatta
Betongen höjdjusterars med hjälp av laser. Sedan slodas och glättas ytan för en jämnare finish.
Datum: 24 November 2025
Husresningen – en milstolpe!
Efter veckor av planering, förberedelser och markarbete är det äntligen dags att se huset ta form – på riktigt.
Tidigt på morgonen anländer lastbilar med färdiga väggblock. Allt är prefabricerat och måttanpassat. Kranen lyfter block efter block och placerar dem exakt på sina positioner.
När väggar och bjälklag är monterade lyfts takstolarna på plats. De fästs mot väggarna och riktas in för att skapa en stabil takkonstruktion. Därefter monteras råspont och underlagspapp.




Datum: 18 December 2025
Tätt hus
Montering av råspont
Arbetet började med montering av råspont på taket. Råsponten spikas fast direkt på takstolarna.
Underlagspapp – skydd mot väder och vind
Efter råsponten monteras underlagspappen. Den fungerar som ett viktigt skydd mot fukt, regn och snö och är avgörande för takets täthet. Redan här märks skillnaden – huset står nu betydligt bättre rustat mot vädret.
Läktning och läggning av takpannor
När underlagspappen är klar fortsätter arbetet med läktning, som skapar rätt avstånd och infästning för takpannorna. Därefter påbörjas läggningen av takpannor. Rad för rad kommer pannorna på plats och ger huset sitt slutliga uttryck.




Datum: 26 Januari 2026
Invändiga arbeten i full gång
Nu har projektet tagit ett stort kliv framåt! De utvändiga arbetena är i princip klara, med undantag för den sista putsen, och fokus ligger nu helt på insidan av huset.
Från stomme till färdiga ytor
Just nu pågår arbetet med att skivklä tak och väggar, ett viktigt moment som lägger grunden för alla kommande ytskikt. När skivorna är på plats kan nästa steg ta vid med spackling, målning och montering av lister.
Samtidigt samordnas arbetet med el och VVS för att säkerställa att alla installationer hamnar rätt innan ytorna färdigställs.
Nästa steg
När putsarbetet utvändigt är klart och de invändiga skivorna sitter där de ska, går projektet in i sin slutspurt. Då väntar de sista detaljerna som ger huset sin slutliga karaktär.
Vi ser fram emot att snart kunna visa fler bilder på hur interiören växer fram – håll utkik efter nästa uppdatering! 🛠️




SAMARBETSPARTNERS
Arkitekt: Byggingenjör Hovmark
Konstruktör: TJ:s HUS
Entreprenör: Ölands Bygglag
Samarbetspartners/leverantörer
- Capéa Entreprenad AB
- Kalmar VVS & Elmontage AB
- Jonssons Trä – BOLIST
- P O Elförbättringar